Как можно самостоятельно изготовить купель для бани - Строительство и ремонт.

Видов купелей довольно много. Если посвятить этому вопросу некоторое время, то можно выбрать единственно правильный вариант для бани. Причём при наличии умения работать руками вы соорудите это изделие самостоятельно.
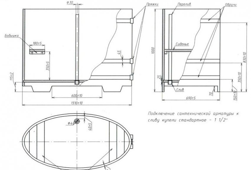
#i-2
#i-3
#i-4
#i-5
#i-13
Функции купели
Купель должна быть в любой бане. Русская парная с веником и особым составом воды, подливаемой на каменку — самая полезная из всех типов подобных сооружений. Высокая температура и пар в бане расширяет сосуды, усиливает кровообращение, тонизирует кожу. Но это и очень большая нагрузка на сердце. Нужно обязательно нейтрализовать жар особым образом, мгновенно остудив тело. Тем самым тренируются сосуды, улучшается тургор кожи, работа сердца, настроение, лечится гипертония, простуда и вирусные заболевания, происходит общее закаливание организма. Хорошо, если баня стоит на берегу реки или участок позволяет построить рядом с ней бассейн. Зимой же после процедуры можно упасть прямо в снег. Если разместить её так не получается, тогда единственный выход — установить в ней хорошую купель с ледяной водой.
Купель можно располагать как внутри бани, так и на улице
Конструкция купели
Любая купель — это ёмкость для погружения в холодную воду, установленная в предбаннике. Размер, форма, материал может варьироваться. Общее у них лишь одно — подведение и слив воды. Последний может быть проведён в городскую канализацию (при её наличии), в выгребную яму или в просто на участок в систему орошения, но только если баня стоит на склоне.
Купель может быть оснащена большим количеством разных устройств:
- перилами;
- скамеечками внутри и снаружи;
- ступеньками;
- лестницами;
- фильтрами;
- массажными соплами;
- системами очистки и подогрева воды.
Но может состоять просто из ёмкости со сливом и краном.
Деревянная купель скромных размеров наполняется душевым шлангом
Виды купелей
Каждый хозяин может выбрать ту конструкцию, которая идеально подходит для его бани.
Купели бывают как размером с небольшой бассейн, так и рассчитанные на одного человека. Каждая из них имеет свои преимущества. В большой купели вода долго не греется и не загрязняется. Маленькую проще наполнить, кроме того, её можно установить даже в городской квартире, если там смонтирована мини-сауна.
По форме купели бывают:
- Круглые. Это красиво, но не вполне эргономично. Такую купель сложно вписать в небольшой прямоугольный предбанник. Чаще всего они бывают металлические, пластиковые или акриловые, но иногда и деревянные.
![]()
Круглая пластиковая купель для бани довольно практична
- Овальные. Наиболее традиционная форма, хотя тоже не эргономична. Такие купели, как правило, делаются из дерева по типу винных бочек — из планок (их называют клёпками или ламелями) и металлических или деревянных ободков.
![]()
Купель промышленного производства из мореного дуба Bentwood выглядит весьма презентабильно
- Квадратные. Эти купели чаще бывают стационарными, выстроенными из бетона и кафеля, но встречаются и с деревянной облицовкой.
![]()
Дизайнерская купель для бани с подголовниками, ступеньками и деревянной облицовкой чаще всего бывает стационарной
Отличаются купели и материалом. Они бывают:
- Пластиковые. Самый простой и дешёвый вид купелей. Легче всего по весу, установке, присоединению конструкции слива. Обладает прекрасными эксплуатационными свойствами: долговечна, мобильна, легка в уходе. В отличие от деревянных и железных купелей пластиковые можно монтировать и рядом с баней на участке.
![]()
Акриловая купель может быть декорирована под дерево
- Металлические. Тоже относительно недорогие купели с теми же преимуществами установки. Но есть и существенный недостаток — очень быстро охлаждаются, поэтому входить в них может быть неприятно.
Купель из нержавеющей стали с фильтром для воды, установленная на участке, является довольно сложной конструкцией
- Бетонные. По технологии строительства сходны с домашними бассейнами. Отделываются специальной водостойкой краской, мозаикой или кафелем.
Купель из бетона, отделанная мозаикой, по конструкции является почти бассейном с фильтрами и системой подогрева воды
- Деревянные. Обладают целебными свойствами и являются экологически чистыми. Готовые деревянные купели — одни из самых дорогих. Как правило, они изготавливаются из ценных пород дерева и являются достойным украшением вашей бани. Купель из кедра невероятно полезна и долговечна. Это дерево не подвержено гниению и рассыханию, оно насыщено эфирными маслами, которые длительное время будут ароматизировать воду, повышая ваш тонус и оздоравливая организм. Купель из лиственницы обладает теми же качествами. Конструкция из дуба наделяет воду регенерирующими свойствами и улучшает сопротивляемость организма и сон. Изготавливают купели также из сосны, берёзы и бука.
![]()
Деревянная купель из кедра значительно оздоровит ваш организм
Выбор будущей конструкции купели и материала для её постройки
Конструкция и материал взаимосвязаны. Их выбор равно зависит как от места установки будущей купели, так и от ваших умений. Если вы специалист в кладке кирпича, кафеля и замесе цементного раствора, то лучше браться за бетонную конструкцию. Если вы любите и умеете работать с деревом — то за кедровую или дубовую. Но всё же определяющим фактором будет конструкция и размер вашей бани, наличие и тип канализации.
Бетонная купель вмещает гораздо большую кубатуру воды, чем деревянная, но требует наличия хорошо продуманной системы слива и значительных финансовых затрат. Но её часто проще построить, и она будет намного дольше служить вам. Деревянная купель очень сложна в изготовлении именно в плане герметичности, нужно обладать огромным терпением и аккуратностью при сборке, точно соблюдать геометрию деталей.
Постройка деревянной купели
Изготовление деревянной купели для бани имеет свои особенности.
Особенности подбора материала
Если у вас есть возможность приобрести дорогую древесину кедра, лиственницы, бука и дуба, то это оптимальный вариант. Она устойчива к гниению и деформации, долговечна и приятна глазу. Но можно использовать сосну, берёзу или ясень, но только древесину, специально обработанную от гниения. Доски должны быть шпунтованные, но круглого сечения. Также стоит выбирать хорошо просушенный материал без сучков. Оптимальная толщина доски — 40 мм.
Расчёт необходимого материала
Первое, что нужно сделать — определить желаемые размеры, затем нарисовать чертёж вашей будущей купели.
Купель должна быть оснащена сливом
Также можно воспользоваться специальными программами.

Примерный объёмный чертеж будущей купели поможет составить специальная программа
Исходя из размера купели и ширины досок, которые вы уже присмотрели, вычислите количество необходимого материала на стены и пол. Затем определите, сколько бруса понадобиться для изготовления ступенек.
Таблица: необходимые материалы
| Наименование | Размер | Количество |
| Доска на стенки купели | 120х40 мм | 40 штук |
| Доска на дно изделия | 120х40 мм | 12 штук |
| Брус на ступеньки и ножки (при необходимости) | 120х120х2000 мм | 10 штук |
| Металлическая гибкая полоса из нержавеющей стали | 70х3х3000 мм | 3 штука |
| Болты, гайки, саморезы | ||
| Водоустойчивый эластичный клей для древесины | ||
| Антисептик | ||
| Восковая водоотталкивающая пропитка для древесины | ||
| Сифонная конструкция для слива | 1 штука | |
| Трубы для соединения с канализацией |
Инструменты
Заранее нужно подготовить и определённые инструменты, а именно:
- пилу (болгарку, электролобзик);
- молоток, в том числе и с резиновой насадкой;
- набор отвёрток;
- дрель;
- насадку — коронку по дереву;
- свёрла по металлу;
- наждачную бумагу разной фракции;
- кисти.
Процесс изготовления купели
Для изготовления деревянной купели нужно:
- Нарезать доски и брус на куски требуемой длины — для пола, стенок, ступенек и крепёжных деталей.
![]()
Шпунтованные доски для купели нужно обработать антисептическими пропитками
- При необходимости (лёгкой деформации или наличии заусенцев) слегка обстрогать их рубанком.
- Тщательно ошкурить сначала крупной наждачной бумагой, потом мелкой до состояния гладкости.
- Пропитать материал антисептиком, дать составу впитаться и высохнуть дереву.
- Покрыть доски и брус восковой жидкостью. Если вы планируете собирать купель на клей, то лучше использовать данное средство тогда, когда изделие будет уже полностью готово.
- Доски для пола купели выложить на ровную поверхность, смазать шпунты и пазы клеем, подбить друг к другу с помощью резинового молотка и зафиксировать конструкцию струбцинами.
![]()
Доски для дна купели нужно тщательно соединить друг с другом
- Когда клей высохнет, их снять и монтировать дополнительно две перпендикулярные доски с помощью саморезов. Можно не применять клей для крепления элементов, а обойтись только соединительными брусами. Но тогда нужна поистине ювелирная подгонка досок одна к другой. Герметичность в этом случае будет обеспечиваться лишь разбуханием древесины от влаги.
- Тщательно выверять нужные размеры дна, чтобы потом боковые стенки оказались собраны из досок без зазоров.
Заранее нужно точно определить количество досок для стенок купели
- Вырезать лобзиком или болгаркой дно по задуманной форме.
Вырезанное дно купели и подготовленные доски стенки, сифон и обручи можно сначала соединить без фиксации, чтобы определить правильность размеров
- В каждой доске стенки с одного конца выпилить паз квадратного сечения для соединения с нижней частью купели.
- Теперь можно начинать их установку по одной, подгоняя ко дну и друг к другу, подбивая резиновым молотком. Их можно фиксировать клеем, но его использование необязательно.
Дно купели должно заходить в паз боковой стенки до конца
- Когда половина досок будет установлена, высверлить в дне отверстие под слив. Оно должно не попасть на место расположения фиксирующего бруса.
![]()
Отверстие под слив нельзя делать в фиксирующем брусе
- Установить и зафиксировать в отверстии сливную конструкцию с сифоном, предварительно щедро промазав дерево герметиком.
- Продолжить сборку стенки.
- Завершить изготовление конструкции последней доской, загоняя её сверху резиновым молотком с усилием. Если точно рассчитать размеры дна, в идеале на стенку уйдёт подготовленное количество досок, и не будет необходимости дополнительно делать более узкий последний элемент.
Установка последней доски происходит путём вбивания её молотком с резиновой насадкой
- Нарезать из металлической полосы обручи. Лучше, если их будет не меньше трёх. Длина обруча должна равняться обхвату купели плюс 1–2 см.
- Концы ободов загнуть на 2 см с каждой стороны. Просверлить в них отверстия под болты с гайками.
- Каждым обручем охватить купель на необходимой высоте. Соединить концы болтами и гайками. Обстучать обруч резиновым молотком для лучшего прилегания к дереву. Между концами должно остаться небольшое расстояние, которое по мере закручивания гаек будет стремиться к нулю, и обручи плотно зафиксируют всю конструкцию.
Фиксирующие обручи должны плотно облегать конструкцию купели
Обработать герметиком место соединения дна и стенок купели.- Если это не сделано ранее, покрыть поверхность изделия восковой водонепроницаемой пропиткой.
- Монтировать ступеньки. Особых правил для этого процесса нет. Нужно сделать это так, чтобы вам нравился конечный результат. При желании можно соорудить полочку для мыла и лавочки внутри купели.
![]()
Лавочку внутри купели можно сделать из обрезков досок
- Установить готовую конструкцию на отведённое ей место. Поверхность должна быть абсолютно ровной, потому что перекосы губительны для изделия. При необходимости для выравнивания конструкции можно подложить под дно купели кусочки дерева или камня.
- Соединить сифон с трубой канализации.
- Залить купель водой, через несколько часов определить наличие протечек. Если они есть, то стоит подтянуть болты на обручах и оставить воду ещё на некоторое время. Если все сделано аккуратно, протечки прекратятся.
Видео: сборка деревянной купели своими руками
Правила эксплуатации
Если вы хотите, чтобы купель долго служила, то надо следовать некоторым правилам во время использования конструкции:
- Нельзя оставлять в ней воду больше, чем на сутки. Но также не рекомендуется длительное время держать её без воды — она непременно рассохнется и станет подтекать. Правда, это иногда можно устранить. Для этого достаточно налить в неё воду и дать время опять разбухнуть.
- Нельзя устанавливать такую купель на тёплый пол или рядом с нагревательными приборами.
- Мыть её нужно мягким, неагрессивным моющим средством, но желательно, чтобы оно было и антигрибковым. С этой же целью нужно периодически полностью просушивать изделие.
Постройка бетонной купели
Изготовить купель для бани можно и из бетона.
Совет по выбору материала
Количество материала зависит от предполагаемого размера купели — её глубины, ширины, длины и толщины стенок. Последний параметр обычно составляет 15–20 см. Количество бетона для изделия можно определить, если данные величины умножить. Обычно расходуется 7 мешков материала по 50 кг на 1м3 заливки, при этом для приготовления раствора используется 1 часть цемента, 3 части песка и 5 частей мелкого щебня. Рекомендуется использовать марку основного материала не ниже М400, при этом желательно к нему добавлять вещества, повышающие влагостойкость, например, жидкое стекло. Песок подойдёт мелкий, гомогенный, промытый.
Таблица: необходимый материал для бетонной купели
| Цемент | М400 |
| Песок | Гомогенный, мелкий |
| Щебень | Мелкий, размер фракции до 10 мм |
| Жидкое стекло или иная гидроизоляционная смесь | |
| Арматура или арматурная сетка | Сечение 5–8 мм, размер ячеек 10 см |
| Рубероид для гидроизоляции | |
| Доска или ДСП для опалубки | |
| Плиточный клей | |
| Керамическая плитка или мозаика | |
| Водоустойчивая резиновая краска (если не используется плитка или мозаика) | |
| Раствор для затирки Ceresit СХ 5 | |
| Гвозди для опалубки |
Инструменты для монолитной конструкции
Для строительства бетонной купели необходимо подготовить:
- Устройство для замешивания бетона.
- Лопату.
- Болгарку для резки арматуры.
- Сварочный аппарат.
- Пилу для резки досок или ДСП.
- Отвес или уровень.
- Угольник.
- Алмазный диск для резки кафеля.
- Шпатель.
Процесс постройки купели
Сам процесс возведения монолитной купели происходит в несколько этапов:
- Строительство фундамента. Начать процесс нужно с копки котлована. Обычно бетонная купель имеет высоту 1,5 м и площадь не меньше, чем 1,5 м2 на человека при одновременном купании. Нужно прибавить к данным параметрам толщину стенок и запас на опалубку, что позволит определить размеры. Традиционно фундамент купели должен размещаться вплотную к основанию самой бани.
![]()
Высота котлована должна быть больше размеров фундамента
- Выравнивание стен по отвесу или уровню и углов по угольнику.
- Формирование углубления под сливную трубу и выступа для установки насоса (если баня находится на возвышении, то в нём нет потребности).
- Монтаж сливных труб, вывод их из основного котлована в подготовленный выступ или сразу наружу из бани. Труба в месте слива должна возвышаться над дном на 80 см. Отверстие герметично затыкается.
- Насыпка на дно вырытого котлована слоя песка толщиной не менее 20 см. Старательно утрамбуйте его, предварительно смочив. На песок нужно насыпать слой щебня в 10 см, утрамбовать его.
- Прокладка по всем стенкам и дну котлована гидроизоляции. Это может быть несколько слоёв рубероида.
- Установка вдоль стенок котлована опалубки из листов ДСП или досок.
![]()
Высота котлована должна быть больше, чем сама купель
- Монтаж по арматурной сетке для прочности заливки.
![]()
Установка арматурной сетки поверх опалубки гарантирует надёжность конструкции
- Установка маяков на дне котлована.
![]()
Маяки нужны для установки второго слоя опалубки
- Сбора второго слоя опалубки.
![]()
Поскольку высота купели значительная, то потребуется устройство нескольких слоёв опалубки
- Установка конструкции на маяки. Она должна не доходить до дна купели с песком и щебнем на 20 см.
![]()
Второй слой опалубки должен быть установлен на маяки
- Заливка бетона. Это очень ответственный процесс, его нужно произвести за один раз, иначе купель будет пропускать воду. Поэтому бетон замешивается в количестве, рассчитанном заранее, и даже с некоторым запасом. Он должен иметь консистенцию жидкой сметаны. Если нет бетономешалки, то раствор замешивается в огромном корыте лопатой вручную.
![]()
Заливать бетон нужно за один раз
- Заливка дна по нижнему краю второго слоя опалубки. Делать это нужно так, чтобы не образовывались пустоты. После заливки необходимо использовать виброплиту для того, чтобы пузырьки воздуха вышли из раствора.
![]()
В конце заливается дно купели
- Просушка бетона. На это может потребоваться около двух недель.
![]()
После заливки купели бетону надо дать время застынуть
- Снятие опалубки. Купель нужно оставить ещё на 14 дней для окончательного затвердения.
![]()
После снятия опалубки купели нужно дать окончательно затвердеть
- Устранение дефектов поверхности с помощью Ceresit СХ 5. Просмотреть нужно абсолютно все стены. Дать конструкции высохнуть.
![]()
Устраняются дефекты заливки специальным раствором
- Штукатурка стен набело, после чего стоит выровнять торцы, сделать на них уклоны. Дать высохнуть.
![]()
Штукатурка торцов является обязательным этапом
- Гидроизоляция купели. Лучше использовать материал на основе мастики. Нужно дать время ему высохнуть.
![]()
Покрытие гидроизолирующим составом должно быть обязательно
- Монтаж насоса, соединённого с канализацией и сливных труб.
- Покрытие резиновой краской или облицовка кафельной плиткой или мозаикой.
![]()
Купель можно покрасить или облицевать плиткой
- Финишная обработка. При желании можно укрепить на бортике поручни и лесенки.
![]()
При желании в конструкцию купели можно добавить лестницу
Видео: купель из бетона своими руками
Совершенно неважно, какую конструкцию купели вы выбрали для бани, сделать её сможете своими руками, но при условии наличия некоторых умений, желания и целеустремлённости. Требуется и чёткое соблюдение технологии. Только вы сможете сделать изделие, которое будет служить долгие годы.
И будьте в курсе первыми!

































