Как выбрать алюминиевые двери - Строительство и ремонт.

Медленно, но верно алюминиевые двери вытесняют с рынка своих железных и деревянных собратьев. Этому есть простое объяснение — алюминий и его сплавы не горючи, не подвержены коррозии, биологически и химически устойчивы. Эксплуатация алюминиевых дверей не требует дополнительных расходов — расчётный срок службы составляет 80–100 лет и фактически ничем, кроме механических повреждений, не ограничен. Чистый алюминий — это мягкий металл, но при добавлении определённого количества магния и меди его свойства резко меняются. Прочность сплава становится сопоставимой с прочностью стали.
#i-20
#i-21
#i-23
#i-25
Виды и конструкции алюминиевых дверей
Существует огромное разнообразие моделей алюминиевых дверей. Это обусловлено требованиями архитектуры зданий и строительной практикой. При проектировании сооружения инженеры закладывают в каждую деталь интерьера не только функциональную, но и эстетическую нагрузку. Учитываются все нюансы: стоимость, срок эксплуатации, сложность доставки и монтажа, техническое обслуживание. И всё больше отдают предпочтение алюминиевым дверям.
Сегодня алюминиевые двери с остеклением на каждом шагу — при входе в супермаркеты, торговые павильоны, магазины, деловые и медицинские центры
Наружные алюминиевые двери
Задача наружных дверей — защита здания от нежелательного проникновения, погодных катаклизмов и обеспечение сохранности имущества. Поэтому входная дверь должна соответствовать следующим требованиям:
- повышенная прочность;
- повышенная теплоизоляция;
- соответствие нормам пожарной безопасности;
- увеличенная пропускная способность и габариты.
Использование алюминиевых сплавов для производства входных дверей позволяет успешно решать поставленные задачи.
Алюминий — безвредный для здоровья человека материал, обладающий высокими показателями прочности и не подверженный разрушающему воздействию атмосферных явлений. Благодаря тому, что металл хорошо поддаётся всем видам обработки — прокату, ковке, сварке, фрезеровке и т. д. — из него изготавливаются и габаритные изделия, и декоративная продукция.
Алюминиевые профили, из которых производится сборка дверных конструкций, выпускают в двух модификациях:
- «холодный» алюминий;
- «тёплый» алюминий.
![]()
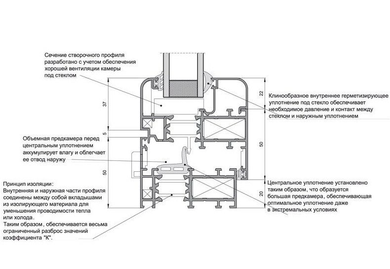
Строение многокамерного алюминиевого профиля под остекленение
«Холодный» профиль представляет собой цельнометаллическое изделие, «тёплый» — многокамерный, с запрессованными внутри полимерными (полиамидными) вставками, которые в холодное время года препятствуют промерзанию, проникновению сквозняков и отводу тепла из помещения.
Входные наружные двери зданий, изготовленные из алюминия, выпускают преимущественно из «тёплого» профиля. Он успешно конкурирует с традиционными дверьми, сделанными из пластика.
Таблица: сравнительные характеристики дверей из пластика и алюминия
| Характеристики | Пластиковая дверь | Алюминиевая дверь |
| Наибольшая ширина дверного полотна | до 90 см | до 120 см |
| Время эксплуатации | до 50 лет | до 100 лет |
| Риск деформации | С течением времени увеличивается | Исключён благодаря прочному каркасу |
| Коэффициент удержания теплопроводности | 0,8–0,85м20С/Вт | 0,55–0,66м20С/Вт |
| Пожаростойкость | Плавится и горит под воздействием огня, выделяя ядовитые вещества | Не подвержена горению и деформации, не выделяет вредных веществ |
| Средняя цена | Цена доступная | Цена на 30% выше (в зависимости от конфигурации профиля) |
Внутренние алюминиевые двери
Это двери внутри помещений: межкомнатные, коридорные и прочие. Основным требованием к внутренним дверям считается звукоизоляция и отчасти термостойкость, а также регулировка вентиляции внутри помещений. Такие двери отличаются большим дизайнерским разнообразием и конструктивными решениями. Их редко делают цельнометаллическими, чаще сочетая алюминиевый каркас со вставками из стекла, древесины или пластика. Впрочем, двери, полностью изготовленные из листового металла, тоже встречаются. Их можно найти в гаражах, подвальных и служебных помещениях.
Стандартными размерами внутренних дверей считаются:
- ширина от 60 до 90 см;
- высота от 190 до 220 см.
Вес не нормируется, всё зависит от назначения дверей и материалов, используемых для их изготовления. Спектр применения широк: от жилых и служебных помещений до производственных и складских объектов. Если габариты дверного проёма отличаются от стандартных, применяют различные комбинации — полуторные, двух- или трёхстворчатые двери. Излишнюю высоту проёма перекрывают стационарными блоками, чаще всего оконным остеклением. Кроме того, практикуется подгонка проёма под размеры стандартных дверей. Его форму изменяют с помощью кирпичной кладки или гипсокартонных конструкций.
Фотогалерея: виды внутренних алюминиевых дверей

Внутренние двери из алюминия с легкостью впишутся в современный интерьер

Межкомнатные внутренние двери из алюминия — элегантное решение для ценителей строгих линий и высокого качества

Алюминиевая межкомнатная дверь может быть снабжена декоративным стеклом — матовым, рельефным или украшенным пескоструйным рисунком

Стеклянные двустворчатые двери из алюминия позволят впустить в помещение больше света и зрительно расширить пространство
Алюминиевые двери со стеклом
Широкой популярностью пользуются двери, сочетающие в себе два современных материала — стекло и алюминий. Такая комбинация позволяет производить прочные и надёжные дверные конструкции. Как правило, каркас состоит из алюминиевых профилей, а внутренность створки — из стекла, в результате чего при высокой прочности проём выглядит лёгким и светлым. Технология успешно соперничает с аналогичными конструкциями из пластика и стекла и имеет ряд преимуществ. Одно из них — металл не накапливает статический заряд электричества.

Несмотря на кажущуюся лёгкость, конструкция двери, собранная по формуле «алюминий + стекло», обладает запасом повышенной прочности
Нормативные документы не регламентируют толщину, цвет и степень прозрачности стёкол. Однако есть требования безопасности, которые предписывают использовать материалы, не представляющие угрозы здоровью человека. Поэтому производители оборудуют алюминиевые двери специальным стеклом с повышенной прочностью. К таким относятся:
- армированное стекло, в толщу которого вставлены металлические нити;
- калёное стекло, прошедшее дополнительную термическую обработку;
- стекло, покрытое противоударной плёнкой (триплекс).
Возможны комбинированные варианты. Например, в целях повышенной защиты от вандализма, армированное стекло покрывают слоем полимерной плёнки. Но в противопожарных дверях запрещено использовать стекло с арматурой или триплекс.
Как правило, стеклопакет крепится в створку специальными зажимами с резиновыми уплотнителями. Это защищает торцы стекла от трения о металл, к которому оно чувствительно.
Фотогалерея: алюминиевые двери со стеклом

Входные стеклянные матированные двери на алюминиевом каркасе обеспечат проникновение света в помещение и защитят от посторонних глаз
Входные двери магазина с противоударным остеклением — надёжная защита от посягательств вандалов

Наружная дверь с усилением стеклянной конструкции, декорированная переплётом, — не просто достойный образец бессмертной классики, но и верный страж дома

Раздвижные алюминиевые двери могут стать изюминкой интерьера
Распашные алюминиевые двери
Распашной принцип открывания — самый распространённый. Дверей, имеющих такую конструкцию, подавляющее большинство. Открытие створки осуществляется нажатием на полотно и перемещением его вокруг оси вращения, которая закреплена на дверной коробке.

Входные двери с распашным механизмом открывания часто устанавливают в торговых, учебных, офисных центрах и других местах с большой проходимостью
Различают однопольные и двупольные двери распашного типа. Первые состоят из одной открывающейся створки, вторые — из двух. Иногда применяют комбинированные варианты, состоящие из одной подвижной створки и второй, закреплённой неподвижно. Открывают её только в случае необходимости, в остальное время она служит частью дверного проёма.
Для правильной работы распашных дверей большое значение имеет подбор навесного оборудования и регулировка прилегания полотна к раме. Вес створки должен равномерно распределяться на петлях, поэтому устанавливать их нужно, придерживаясь правил динамического баланса.
Установка распашных дверей требует аккуратности и тщательной регулировки положения створок внутри дверного короба.
Алюминиевые двери маятниковые
Маятниковая дверь — идеальный вариант для мест большого скопления людей, где движение осуществляется в одном или нескольких направлениях одновременно. Такими местами являются:
- станции метро;
- крупные торговые центры, супермаркеты;
- административные комплексы, библиотеки;
- арены спортивных стадионов.
Характерная особенность маятниковых дверей — способность створки свободно двигаться в разных направлениях. В отличие от распашной конструкции, где дверь всегда открывается в одну сторону, а полотно имеет упор в раме, маятниковые двери раскрываются на 180о относительно оси крепления и не имеют упора. С помощью доводчиков, которые вмонтированы в петли, створка всегда возвращается в исходное положение.
Будучи способными открываться в обе стороны для пропуска людей, двери маятниковой конструкции с успехом используются в общественных местах
Маятниковые двери выпускаются в однопольном или двупольном исполнении. Их монтаж отличается от установки обычной распашной двери, а монтажнику пригодятся специальные навыки и теоретическая подготовка.
Маятниковые двери, сделанные из алюминиевых сплавов, имеют ряд неопровержимых преимуществ:
- лёгкость управления;
- длительный срок службы;
- минимальная нагрузка на опорные конструкции.
Видео: монтаж маятниковых дверей
Алюминиевые двери раздвижные
Раздвижная конструкция дверей получила широкое распространение в помещениях с ограниченным пространством дверного проёма. Там, где сложно установить распашную дверь, раздвижные створки станут оптимальным решением. Однако такие двери можно установить не везде. Например, в узком коридоре её смонтировать не удастся.

Раздвижные стеклянные двери с алюминиевым каркасом, установленные при входе на террасу, не занимают пространство при открывании, предоставляют прекрасный обзор, позволяют солнечному свету проникать внутрь, а в непогоду надёжно защищают от ветра
Особенностью раздвижной конструкции является механизм открытия створок двери. Если в распашном варианте полотно открывается нажатием на одну из его сторон, то здесь нужно сдвигать створку, перемещая её по направляющим подвески.
Видео: раздвижные алюминиевые двери в квартире
Алюминиевые двери откатные
Откатные двери — весьма элегантное решение проблемы экономии пространства. Такой тип двери изготавливают из различных материалов, в том числе и из алюминия.

Откатные двери по виду очень напоминают раздвижные, но отличаются механизмом открывания
Механизм открывания откатных дверей представляет собой встроенную в раму кулисную систему, по которой перемещается дверное полотно. Створка откатной двери по направляющему желобу передвигается на роликовых колёсах, выполняющих роль точки опоры, тогда как раздвижные двери этого лишены.
Монтаж рамы отличается дополнительной работой по установке роликового механизма.
Направляющие рейки производятся из металлического профиля «П»-образной формы. Внутри расположена подвеска, движущаяся в продольной оси на роликовых подшипниках.

Схема строения направляющей подвески откатных дверей
Откатные двери устанавливают в местах, где необходима надёжность и крепость, однако, эксплуатируя такие двери, следует помнить, что некоторые конструкции предполагают периодическую смазку элементов подвески. Рекомендуется применять смазочные материалы, указанные в техническом паспорте.
Алюминиевые двери с телескопической коробкой
Телескопическая коробка из алюминия — это современное решение проблемы установки дверей в нестандартных условиях. Она предназначена для монтажа в различных помещениях, там, где нет возможности (или желания) подгонять толщину проёма под размер существующих дверей. Ширина и высота коробки варьируется в пределах 25–50 мм. Полотна подбираются из любых известных материалов, толщина ограничена 40 мм.
Принципиальное устройство телескопической дверной коробки
Внутри телескопической рамы расположен притвор, благодаря которому дверь можно устанавливать в проём без дополнительной подготовки и отделочных работ. Цвет выбирается в зависимости от общего фона или дизайнерских предпочтений. Возможны базовые металлические и анодированные тона.
Этот вид дверной рамы признан универсальным и подходит для установки:
- в офисных помещениях;
- в гостиницах;
- в торговых заведениях;
- в спортивно-игровых комплексах.
Видео: процесс сборки и монтажа телескопической коробки
https://youtube.com/watch?v=j1cctVGOiI8
Алюминиевые двери дымонепроницаемые
В зависимости от расположения и назначения дверного проёма, требования к дверям могут расширяться. Кроме звукоизоляционных свойств двери служат интересам пожарной безопасности и могут стать преградой на пути огня и дыма. Для этого их оборудуют дополнительными опциями — специальными уплотнительными прокладками, которые при повышении температуры выделяют большое количество пены. Расширяясь, уплотнители герметизируют зазоры по периметру дверного полотна и препятствуют проникновению дыма и угарного газа. Кроме того, пена имеет свойство выделять углекислый газ, который способствует затуханию пламени.

Стеклянная противопожарная дверь с алюминиевым профилем — прекрасный вариант для общественных помещений: она не плавится, не горит, не пропускает дым и огонь, а благодаря своей прозрачности предоставляет возможность вовремя заметить начавшийся внутри помещения пожар
Если же дверь изначально проектируется как противопожарный разрыв, конструкцию усиливают полостями, внутрь которых помещают базальтовую вату или гипсоволокнистые плиты. Согласно действующим нормативным документам, дымопроницаемость двери сертифицируется после прохождения испытаний. Изделию присваивается класс огнеупорности, обозначаемый буквой латинского алфавита, а индекс дымонепроницаемости выражается числами. Например, маркировка LS15 обозначает, что дверь в течение 15 минут будет непроницаема для огня и дыма.
Дымонепроницаемая дверь из алюминия снабжена огнеупорной ручкой, которая не нагревается во время пожара, что исключает риск обжечься при контакте с ней
Испытательные тесты вправе проводить лишь специализированные организации, имеющие лицензию МЧС на сертификацию продукции. Сертификаты, выданные другими организациями, не имеют правовой силы, их юридическая значимость считается ничтожной.
Рулонные алюминиевые двери
В гаражах, небольших магазинах и частных домостроениях очень удобно применение рулонных, роллетных, дверей. Их устройство представляет собой совокупность гибкой створки, состоящей из узких металлических сегментов, и рамы, вдоль которой двигается полотно. Использование алюминия и его сплавов в изготовлении роллетных дверей произвело своеобразную технологическую революцию. Раньше в производстве роллет применяли деревянные рейки, пропитанные антипиренами. Но с приходом алюминия ситуация резко улучшилась: конструкция обрела лёгкость и противопожарные характеристики, возросла её прочность и долговечность.

Рулонные (роллетные) двери из алюминия, используемые в гараже, удобны в эксплуатации и не требуют значительных затрат на уход
Устройство механизма роллетной двери представляет собой вращающийся вал, на который наматывается дверное полотно. Привод может быть ручным или электрическим. В отдельных случаях используют систему противовесов для облегчения управления створкой.
Механизм рулонной двери устанавливается в вехнем откосе двери со всеми последующими видами финишной отделки
Обслуживание роллет рекомендуется проводить не реже одного раза в год. Проверяется целостность звеньев, соединяющих ламели, и отсутствие деформации вала, проводится смазка опорных подшипников.
Складные алюминиевые двери
Пока ещё малораспространённый, но перспективный вид дверей. Полотно такой конструкции складывается гармошкой. Створка в собранном виде занимает минимальное количество места и очень компактна.

Складные двери могут иметь от двух до пяти складывающихся секций
Могут устанавливаться:
- в библиотеках;
- в столовых;
- в гардеробах;
- в витринах.
При монтаже «книжек» устанавливаются дополнительные петли, соединяющие створки между собой. Нижние и верхние направляющие должны располагаться на одной оси, иначе образовавшийся перекос очень быстро приведёт к выходу двери из строя.
Видео: складные двери-книжки
Изготовление алюминиевых дверей
Производство дверей из алюминия — сложный технологический процесс, который невозможно повторить в домашних условиях. Однако если присутствует желание и понимание монтажных правил, можно самостоятельно собрать алюминиевые двери. Для этого потребуются профили из алюминия, крепёжный материал, фурнитура и полотно, которое послужит створкой двери. Можно собирать всё это по отдельности, а можно заказать у фирмы, специализирующейся на изготовлении алюминиевых профилей. При правильном расчёте длины и ширины дверной коробки цена комплекта окажется более чем доступной.
Материалы, необходимые для сборки алюминиевой раздвижной двери
Размеры профилей и крепёжных элементов рассчитываются в зависимости от конкретных условий.
Установка и монтаж алюминиевых дверей
Правильное функционирование дверей на 90% зависит от соблюдения норм установки. Существуют нормативные документы, которые регламентируют качество монтажных работ при установке двери:
- ГОСТ 26602.3–99;
- СНиП 21–01–97.
Согласно их положениям, монтаж двери производится с соблюдением основных правил установки несущих конструкций. При этом соблюдается следующий порядок действия:
- Подготовка проёма двери. Если монтаж производится в эксплуатируемом здании и необходимо удалить старую дверь, следует провести полный демонтаж последней, включая дверное полотно, раму и средства крепления. Освободившийся проём необходимо зачистить от старой штукатурки, минеральной ваты, служившей утеплителем, остатков монтажной пены и т. д.
Необходимо полностью освободить дверной проём от старой двери и элементов крепления
- Производится геометрическая разметка для установки новой дверной рамы. На этом этапе важно соблюдать строго вертикальные и горизонтальные привязки для установки дверей. Максимальная погрешность, допустимая на высоте 2 метров, составляет 2 мм. В горизонтальной плоскости искажение дверной оси не должно превышать 1 мм. Наилучшим помощником в разметке дверной рамы считается лазерный строительный нивелир.
![]()
Разметка перед установкой алюминиевой двери осуществляется с помощью гидравлического уровня или строительного лазерного нивелира
- Ближайшее пространство вокруг дверного проёма необходимо освободить от посторонних предметов и мусора. Это нужно для регулировки хода дверной створки, а также для свободного доступа монтажников к месту проведения работ. Расчистка площадки осуществляется заблаговременно, перед доставкой комплектующих дверной коробки.
- Крепление рамы осуществляется в соответствии с разметкой. Фиксация неподвижных элементов проводится с помощью анкерных устройств. Не рекомендуется крепить коробку посредством дюбель-гвоздей или шурупов. При возникновении пожара пластиковые уплотнители плавятся, и дверь может вывалиться.
Предварительная фиксация короба осуществляется с помощью деревянных или пластиковых клиньев
- Устанавливается дверное полотно. Один край створки крепится к навесам, а другой свободно передвигается внутри рамы. На этом этапе осуществляется регулировка подвесных петель. Монтажник должен выставить уровень полотна таким образом, чтобы при открывании оно самопроизвольно не захлопывалось. Дверь должна оставаться там, где её остановила рука пользователя.
![]()
Створка дверей фиксируется к раме с помощью навесных петель
- После регулировки осуществляется окончательная фиксация рамы внутри проёма. Щели и зазоры наполняются монтажной пеной или песко-цементным раствором. Все пустоты и полости устраняются наполнителем. Примыкание к раме становится однородным и монолитным.
С помощью монтажной пены или песко-цементного раствора заполняют пустоты между рамой и кладкой стены
- Проводится финишная отделка дверной рамы. Устанавливаются дверные аксессуары: доводчики, дверные ручки, замки, глазки. По периметру коробки крепятся наличники.
![]()
Наличник должен скрывать все косметические дефекты, оставшиеся после установки рамы в дверной проём
Видео: демонтаж и монтаж дверей в квартире
Комплектующие для алюминиевых дверей
Управление дверьми осуществляется с помощью фурнитуры — дополнительного навесного оборудования. Именно с её помощью дверь может быть закрыта, открыта и зафиксирована в определённом положении.
Основные элементы фурнитуры:
- Замки. Самая общая классификация делит их на накладные, навесные, врезные. Но фактически существует очень много разновидностей замочных конструкций. Специалисты различают сувальдные, бессувальдные, плоские, коробчатые, цилиндрические замки, замки с засовом. Кроме того, на практике часто применяются односторонние запоры — они открываются только с одной стороны, хотя по своей сути являются врезными. Замки с дистанционным управлением, подобные автомобильным, управляются брелоком с автономным питанием. Есть замки кодовые, реечные, дисковые и т. д. Современная наука изыскивает новые способы повышения надёжности замков каждый день. Опытные специалисты советуют устанавливать цилиндрические замки европейского производства, защищённые бронированной накладкой и охранной пластиной от высверливания. Это относится в первую очередь к входным дверям, тогда как межкомнатные не нуждаются в столь дорогой защите и оборудуются обычными врезными замками среднего качества и простым механизмом отмыкания.
![]()
Цилиндрические замки — одни из самых распространённых и доступных по цене
- Петли. Бывают двух видов: видимые и невидимые. Первые расположены снаружи, вторые скрыты дверным полотном и рамой. Различают правые и левые петли. При покупке обязательно нужно обратить на это внимание, так как они разные. Существуют и универсальные петли. Они подходят к любым направлениям открытия дверного полотна. Размер петель должен соответствовать весу створки: чем больше её масса, тем длиннее подбираются петли.
![]()
Схема устройства петли для алюминиевой двери
- Шпингалеты — запорные элементы, которые используются для фиксации одной из створок на полуторной (или двухпольной) двери в неподвижном состоянии. Механизм шпингалета прост, но изделия имеют свои виды, которые классифицируют по монтажным признакам. Затворы бывают накладными, врезными и встраиваемыми. Производятся как из металла, так и из пластика. Преимуществом накладного шпингалета является универсальность — при помощи шурупов, заклёпок, сварки и клея его можно устанавливать на любой вид дверей. Для установки врезных задвижек необходимо подготовить паз в «теле» полотна. Разумеется, в стеклянных и металлических створках это сделать невозможно. Встраиваемые шпингалеты монтируются в канал, вырезанный в торце полотна. Часто его называют за это торцевым шпингалетом.
Накладной шпингалет для дверей, представляющий собой задвижку, может быть выполнен в антикварном стиле из меди, латуни, стали и алюминия
- Дверные ручки — одно из главных средств управления дверью, с помощью которого осуществляется открытие и закрытие створки. Ручки бывают поворотными (кнобы), нажимными и стационарными. Кнобы очень легко устанавливаются и благодаря этому сохраняют пальмовую ветвь первенства в продажах. Они удобны, эстетично выглядят и чаще всего применяются в санузлах, кладовых, кухне и других служебных помещениях. Рассчитаны на работу в дверях толщиной от 30 до 45 мм. Нажимные (фалевые) ручки чаще используются для установки во внутренних дверных полотнах. Они оборудованы защёлкой и замком, что позволяет при необходимости ограничивать доступ в отдельные зоны. Стационарные дверные ручки отличаются большим разнообразием и в конструктивном отношении — самые простые: они никак не связаны с замками или другими запорными устройствами, а единственное их назначение — позволить пользователю удобно толкнуть или потянуть дверь на себя. Во время приобретения дверной ручки необходимо обращать внимание на комплектацию и крепёж: длина шурупов должна соответствовать толщине дверного полотна, в противном случае придётся искать другие саморезы. Не помешает проверить и ход язычка. Он должен передвигаться свободно и прятаться внутрь по всей длине. Упругость толкающей пружины можно проверить вручную, нажав на язычок пальцами.
![]()
Сегодня к любой двери можно подобрать подходящую по стилю фурнитуру, в том числе с резьбой, инкрустацией, эффектом старения, ведь красота — в деталях
- Стоит обратить пристальное внимание на уплотнители, поставляемые в комплекте с дверным полотном. От уплотнителя зависит герметичность прилегания створки к раме, а это оказывает непосредственное влияние на звуковую и тепловую изоляцию. Поскольку уплотнитель ежедневно подвергается многократным нагрузкам, материал, из которого он изготовлен должен быть качественным, упругим, без отверстий и разрывов. Проверять комплектацию необходимо во время покупки, сверяя фактическое содержимое упаковки с паспортными данными.
Материал уплотнителя должен быть качественным, эластичным и быстро возвращать исходную форму при деформации
Вся фурнитура подбирается в одном стиле и цвете, гармонично вписывающемся в общую картину. Очень эффектно смотрятся элементы двери, стилизованные под старину: бронзовые и инкрустированные дверные накладки, ручки, замочницы.
Дверь, укомплектованная этими приспособлениями и механизмами, становится надёжным охранником дома или квартиры, а управление дверной створкой — комфортным и удобным.
От того, какого уровня качества фурнитура установлена, зависит срок службы двери.
Видео: фурнитура для дверей
Ремонт и регулировка алюминиевых дверей
Чаще всего во время эксплуатации страдают дверные петли. Это связывают с некачественным материалом, из которого они изготовлены, или с неправильным подбором их размера. Если вовремя не заметить, что петли разболтались, со временем дверное полотно начнёт расшатываться, смещаться, а замки — заклинивать.
Вот критерии исправной работы дверной подвески:
- открытие и закрытие происходит без труда, легко;
- полотно сохраняет то положение, в котором его оставили (кроме дверей, оборудованных доводчиком);
- прилегание створки к раме равномерно по всему периметру;
- отсутствие какого-либо трения между дверным полотном и коробкой двери;
- нет явных зазоров и смещений двери относительно оси её установки.
Если «хромает» один из пунктов списка, необходимо провести регулировку дверной петли. Это может спасти её от полного или частичного разрушения.
Скрытые дверные петли, обеспечивающие высокую степень защиты от взлома, можно отрегулировать, не снимая дверное полотно
Регулировка петель алюминиевых дверей
Наиболее удобны в регулировке скрытые дверные петли. В них установлены три винта. Каждый корректирует один из параметров: высоту, ширину посадки дверного полотна, а также прилегание. Регулировка производится шестигранником, который обычно поставляется вместе с петлями и имеет форму буквы «Г». Нежелательное отклонение полотна от нормативного положения убирается вращением регулирующих винтов.
Расположение регулировочных винтов на дверях Centro и NT
Процесс регулировки скрытых петель состоит из нескольких этапов:
- с петель снимаются пластиковые накладки;
- чтобы отрегулировать полотно двери по высоте, выставляются одинаковые зазоры внизу и вверху полотна;
- полотно выравнивается относительно коробки с установлением зазора;
- регулируем дверь по прижиму, добиваясь равномерного прилегания дверного полотна к коробке;
- накладки устанавливаются на свои места.
![]()
В технической документации к каждой модели подробно описываются действия по регулировке положения дверного полотна и, следуя инструкции, всегда можно добиться желаемого результата
Видео: как отрегулировать петли WX по прижиму
К сожалению, не все петли являются регулируемыми. Если дверь оборудована петлями нерегулируемой конструкции, их необходимо своевременно заменить.
По прогнозам экспертов, в обозримом будущем будет сохраняться тенденция к наращиванию доли алюминиевых дверей в общем производстве. Это значит, что рано или поздно такие двери будут в каждом доме, ведь дверь из алюминиевых сплавов — верный защитник домашнего уюта и надёжный хранитель имущества от посягательств злоумышленников.
И будьте в курсе первыми!





















